Property Type
                                                    
                                                    
                                                        Condo, Apartment
                                                    
                                                
                                                        Parking
                                                    
                                                    
                                                        Garage: Yes, 1 parking
                                                    
                                                
                                                        MLS #
                                                    
                                                    
                                                        R3062042
                                                    
                                                
                                                        Size
                                                    
                                                    
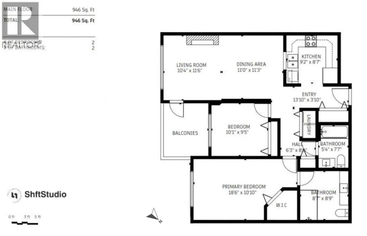
                                                        941 sqft
                                                    
                                                
                                                        Basement
                                                    
                                                    
                                                        -
                                                    
                                                
                                                        Listed on
                                                    
                                                    
                                                        -
                                                    
                                                
                                                        Lot size
                                                    
                                                    
                                                        -
                                                    
                                                
                                                        Tax
                                                    
                                                    
                                                        -
                                                    
                                                
                                                        Days on Market
                                                    
                                                    
                                                        -
                                                    
                                                
                                                        Year Built
                                                    
                                                    
                                                        1993
                                                    
                                                
                                                        Maintenance Fee
                                                    
                                                    
                                                        $376/mo
                                                    
                                                
 
                         
						         
						         
						         
						         
						         
						         
						         
						         
						         
						         
						         
						         
						         
						         
						         
						         
						         
						         
						         
						         
						         
						         
						         
						         
						         
						         
						         
						         
						         
						         
						         
						         
						        